RBM築地スクエア 5階/112.72坪の賃貸オフィス

事務所 RBM築地スクエア
up

外観
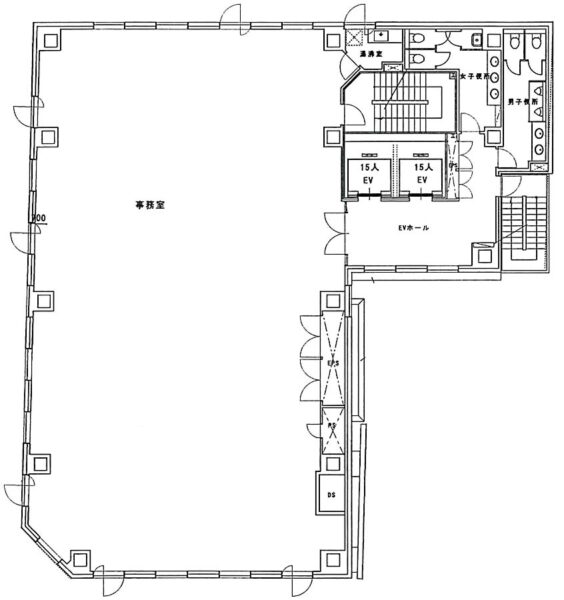
間取
  • 賃料
    相談
  • 種別
    事務所
  • 共益費
    相談
  • 預託金
    12ヶ月
  • 所在地
    東京都中央区新富1-18-8  RBM築地スクエア
  • 交通
    東京メトロ有楽町線 新富町駅 徒歩3分
    JR京葉線 八丁堀駅 徒歩4分

物件詳細

面積 372.628m² 面積(坪) 112.72坪
築年月 2003/11 建物階数 地上9階  地下1階
部屋階数 5階 部屋/区画番号 5
建物構造 S 駐車場
引渡/入居時期 期日指定 20260301 現況 賃貸中
空調 個別 OAフロア 不明
男女別トイレ 不明 エレベーター
物件番号 031071-5
Loading...

※物件掲載内容と現況に相違がある場合は現況を優先と致します。

同じビルの他の募集区画

ビル全体の詳細情報: RBM築地スクエア ビル詳細ページ (所在地・アクセス・ビル画像など)

階数 坪数 月額賃料
(税別)
坪単価 募集状況 詳細
5階112.72坪相談相談募集中現在のページ
1階11.63坪--募集終了詳細を見る
1階30.98坪--募集終了詳細を見る
2階112.11坪相談相談募集中詳細を見る
3階112.72坪--募集終了詳細を見る
4階112.72坪相談相談募集中詳細を見る
6階112.72坪--募集終了詳細を見る
7階112.72坪--募集終了詳細を見る
8階112.72坪--募集終了詳細を見る
9階112.72坪--募集終了詳細を見る

※ 同じビル内の全区画を表示しています。最新の空室状況については、お問い合わせください。

この物件についてのお問い合わせはこちら

お問い合わせ内容を選ぶ