-
- 賃料
- 相談
-
- 種別
- 事務所
- 共益費
- 相談
- 預託金
- 12ヶ月
-
- 所在地
- 東京都新宿区払方町27-6 KSアクス
-
- 交通
- 東京メトロ有楽町線 市ヶ谷駅 徒歩5分
東京メトロ南北線 市ヶ谷駅 徒歩5分
物件詳細
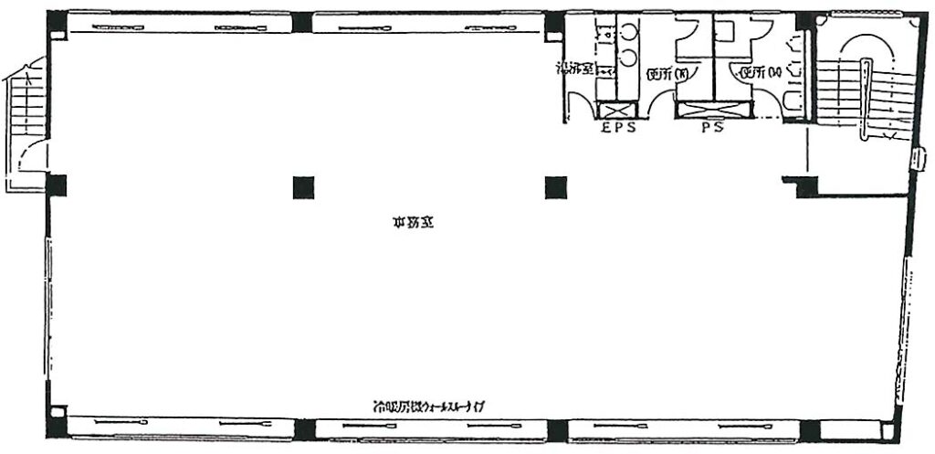
| 面積 | 239.868m² | 面積(坪) | 72.56坪 |
|---|---|---|---|
| 築年月 | 1991/05 | 建物階数 | 地上3階 |
| 部屋階数 | 1階 | 部屋/区画番号 | 1 |
| 建物構造 | RC | 駐車場 | 有 |
| 引渡/入居時期 | 期日指定 20260201 | 現況 | 賃貸中 |
| 空調 | 個別 | OAフロア | 不明 |
| 男女別トイレ | 有 | エレベーター | 無 |
| 物件番号 | 173058-2 | ||
※物件掲載内容と現況に相違がある場合は現況を優先と致します。
この物件についてのお問い合わせはこちら

